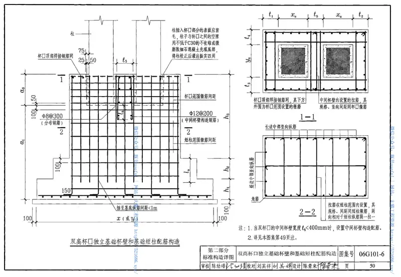
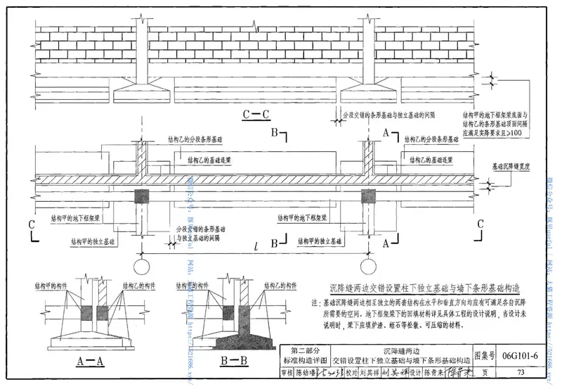
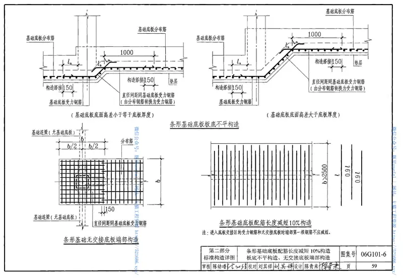
标准规范 06G101-6混凝土结构施工图平面整体表示方法制图规则和构造详图(独立基础、条形基础、桩基承台) 📖 规范简介:《06G101-6混凝土结构施工图平面整体表示方法制图规则和构造详图(独立基础、条形基础、桩基承台)》最新高清无水印 PDF 电子版。本规范/图集为工程建设领域的重要参考标准,经过【大猫工厂】全自动净化处理,去除了影响阅读的广告,页面极其清爽,对工程质量把控、施工工艺标准化具有极高的指导价值。 文件格式纯净高清 PDF 版 规范类别工程图集 分拣类目图集大全 安全评级大猫严选·已脱敏杀毒 📄 规范内页真实预览 (纯净版) (系统自动从经过净化的 PDF 随机抽取 3 页进行展示,放心下载使用) 🔒 点击扫码获取规范解压码 关注微信公众号 豚贝useful发送关键词 解压码 即可自动获取 🚀 115网盘 高速下载 ☁️ 百度网盘 备用下载 相关文章 【标准规范】TBT3479-2017铁路贯通地线 标准规范 【标准规范】GB18173.1-2012高分子防水材料第1部分:片材 标准规范 【标准规范】GB50462-2015数据中心基础设施施工及验收规范 标准规范 【标准规范】CJT193-2004内层熔接型铝塑复合管 标准规范 发表评论 取消回复您的邮箱地址不会被公开。 必填项已用 * 标注在此输入... Name* 电子邮箱* 网站 在此浏览器中保存我的显示名称、邮箱地址和网站地址,以便下次评论时使用。
标准规范 06G101-6混凝土结构施工图平面整体表示方法制图规则和构造详图(独立基础、条形基础、桩基承台) 📖 规范简介:《06G101-6混凝土结构施工图平面整体表示方法制图规则和构造详图(独立基础、条形基础、桩基承台)》最新高清无水印 PDF 电子版。本规范/图集为工程建设领域的重要参考标准,经过【大猫工厂】全自动净化处理,去除了影响阅读的广告,页面极其清爽,对工程质量把控、施工工艺标准化具有极高的指导价值。 文件格式纯净高清 PDF 版 规范类别工程图集 分拣类目图集大全 安全评级大猫严选·已脱敏杀毒 📄 规范内页真实预览 (纯净版) (系统自动从经过净化的 PDF 随机抽取 3 页进行展示,放心下载使用) 🔒 点击扫码获取规范解压码 关注微信公众号 豚贝useful发送关键词 解压码 即可自动获取 🚀 115网盘 高速下载 ☁️ 百度网盘 备用下载