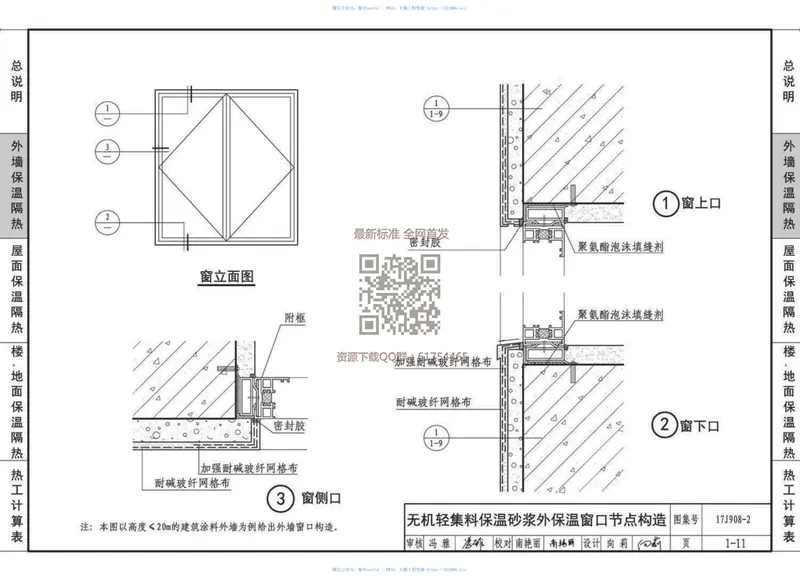
标准规范 17J908-2公共建筑节能构造-夏热冬冷和夏热冬暖地区 📖 规范简介:《17J908-2公共建筑节能构造-夏热冬冷和夏热冬暖地区》最新高清无水印 PDF 电子版。本规范/图集为工程建设领域的重要参考标准,经过【大猫工厂】全自动净化处理,去除了影响阅读的广告,页面极其清爽,对工程质量把控、施工工艺标准化具有极高的指导价值。 文件格式纯净高清 PDF 版 规范类别工程图集 分拣类目图集大全 安全评级大猫严选·已脱敏杀毒 📄 规范内页真实预览 (纯净版) (系统自动从经过净化的 PDF 随机抽取 3 页进行展示,放心下载使用) 🔒 点击扫码获取规范解压码 关注微信公众号 豚贝useful发送关键词 解压码 即可自动获取 🚀 115网盘 高速下载 ☁️ 百度网盘 备用下载 相关文章 【标准规范】JTGTF72-2011公路隧道交通工程与附属设施施工技术规范 标准规范 【标准规范】CJJT276-2018预弯预应力组合梁桥技术标准 标准规范 【标准规范】GBT14560-2016履带起重机 标准规范 【标准规范】JTGT3812-2020公路工程建设项目造价数据标准 标准规范 发表评论 取消回复您的邮箱地址不会被公开。 必填项已用 * 标注在此输入... Name* 电子邮箱* 网站 在此浏览器中保存我的显示名称、邮箱地址和网站地址,以便下次评论时使用。
标准规范 17J908-2公共建筑节能构造-夏热冬冷和夏热冬暖地区 📖 规范简介:《17J908-2公共建筑节能构造-夏热冬冷和夏热冬暖地区》最新高清无水印 PDF 电子版。本规范/图集为工程建设领域的重要参考标准,经过【大猫工厂】全自动净化处理,去除了影响阅读的广告,页面极其清爽,对工程质量把控、施工工艺标准化具有极高的指导价值。 文件格式纯净高清 PDF 版 规范类别工程图集 分拣类目图集大全 安全评级大猫严选·已脱敏杀毒 📄 规范内页真实预览 (纯净版) (系统自动从经过净化的 PDF 随机抽取 3 页进行展示,放心下载使用) 🔒 点击扫码获取规范解压码 关注微信公众号 豚贝useful发送关键词 解压码 即可自动获取 🚀 115网盘 高速下载 ☁️ 百度网盘 备用下载